418 Gallaher Tx 78656 - Image 1
1 / 35
$290,990
Pending Residential

418 Gallaher Tx 78656

Maxwell, TX 78656

Caldwell County

3
Bedrooms
2
Bathrooms
1,488
Sq Ft
4,792 sqft
Lot Size
2025
Year Built

About This Property

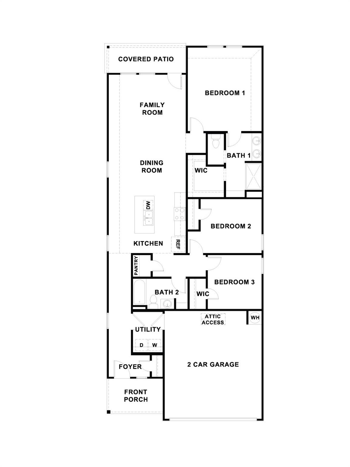
MAY ESTIMATED COMPLETION DATE. The Caroline floorplan, is one of our one story new homes available at Bollinger in Maxwell, Texas. This 3 bedroom, 2 bathroom home includes a 2 car garage all within 1,488 square feet of comfortable living space. Our homes in Bollinger feature our modern farmhouse exterior. From the covered front porch, step inside the home and cross through the foyer and long hallway. The utility room is tucked away off the hall and connects to the garage, making it a perfect mud room. The heart of the home is the open concept living space. The kitchen, dining and family room flow seamlessly into the other, making this space perfect for creating lasting memories. The kitchen features an island with undermount sink, granite countertops, decorative granite backsplash, a pantry closet, 36” upper cabinets, and stainless-steel appliances, including a gas range. Enjoy the natural light from the side and rear windows plus the 8’ to 9’ sloped ceilings in this comfortable space. The primary bedroom is located off the family room and includes an attached bathroom. Start your mornings off right in the private space that includes a walk-in shower, cultured marble vanity with dual sinks, private door to the toilet area and walk-in closet. The secondary bedrooms and bathroom are tucked away off the kitchen. Each secondary bedroom includes a closet with shelving and the hall bathroom includes a shower/tub combination. The Caroline includes vinyl flooring throughout the common areas of the home, and carpet in the bedrooms. A covered back patio is also included in the Caroline plan. All our new homes feature Bermuda sod, an irrigation system in the front and back yard, and a 6’ privacy fence around the back yard. This home comes with our America’s Smart Home base package, which includes the Amazon Echo Pop, Front Doorbell, Front Door Deadbolt Lock, Home Hub, Thermostat, and Deako® Smart Switches

Property Details

MLS ID
5038505
Status
Pending
Days on Market
348
Property Type
Residential
Bedrooms
3
Bathrooms
2
Living Area
1,488 sqft
Lot Size
4,792 sqft
Year Built
2025
County
Caldwell
State
TX
ZIP Code
78656

Location

418 Gallaher Tx 78656, Maxwell, TX 78656

Interested in this property?

Ask about 418 Gallaher Tx 78656

We respect your privacy and will never share your information.

Listing Agent

Dave Clinton
Listing Agent
(512) 270-6196 drclinton@drhorton.com

Listing Office

D.R. Horton, AMERICA'S Builder
(512) 345-4663

Quick Facts

Days on Market 348
Price per Sq Ft $196
Data Source actris
View All Caldwell County Listings