14724 Walnut AVE - Image 1
1 / 33
$260,000
Active Under Contract Manufactured In Park

14724 Walnut AVE

Clearlake, CA 95422

Lake County

3
Bedrooms
2
Bathrooms
1,200
Sq Ft
2001
Year Built

About This Property

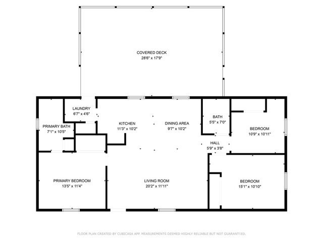
Charming Upgrades, Outdoor Living, Ideal Location! This charming three bedroom, two bath home offers 1,200 square feet of thoughtfully designed living space with high ceilings, abundant natural light, and a well-considered floor plan that places the primary suite on one side and additional bedrooms on the other. Recent upgrades include new flooring, fresh exterior paint including the porch, new front steps, select new windows, a newer HVAC system, extra insulation for year-round comfort and a durable concrete perimeter foundation.. The back door opens onto a beautiful 580 sq. ft. covered deck, perfect for outdoor dining, entertaining, or simply relaxing while overlooking the level, fully fenced double corner lot shaded by mature oaks. A gardener s dream, the expansive yard provides sunny areas for planting as well as plenty of room for play or projects. Just minutes from Clear Lake s public boat launches, fishing, swimming, and water sports as well as local shopping, dining, and nearby wine country this property offers the best of Lake County living. Whether you re a retiree seeking a peaceful setting, a first-time buyer looking for an affordable move-in ready home, or an investor searching for a versatile rental property near recreation, this home blends comfort, convenience, and outdoor enjoyment in one inviting package

Property Details

MLS ID
LC25221115MR
Status
Active Under Contract
Days on Market
135
Property Type
Manufactured In Park
Bedrooms
3
Bathrooms
2
Living Area
1,200 sqft
Year Built
2001
County
Lake
State
CA
ZIP Code
95422

Location

14724 Walnut AVE, Clearlake, CA 95422

Interested in this property?

Ask about 14724 Walnut AVE

We respect your privacy and will never share your information.

Listing Agent

"Pi" Kimberly Stryker
Listing Agent
pistryker@gmail.com

Listing Office

Timothy Toye and Associates
707-928-6900

Quick Facts

Days on Market 135
Price per Sq Ft $217
Data Source crmls
View All Lake County Listings